香蕉振动筛结构
香蕉振动筛如果以外形来定义,可以简称为香蕉筛,该设备具有箱式振动器和多段不同倾角筛面的直线振动筛,筛箱的形状与香蕉相似,故叫做香蕉筛。它主要用于细粒含量高的大、中粒级物料的粒度分级,亦可用于脱水、脱介和脱泥等作业(细粒指粒度小于筛孔尺寸一半以下的颗粒)。


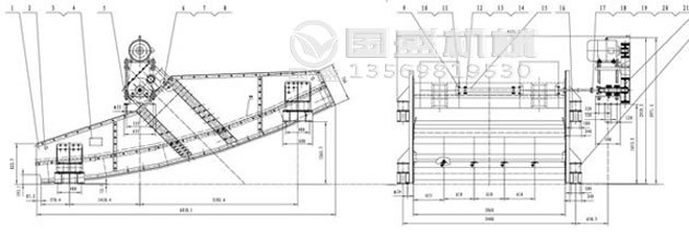
香蕉振动筛主要由筛箱、筛网、激振器、减振弹簧和下座架等组成。它是由电动机和激振器作为振动源,激振器主要是由偏心轴、皮带轮、轴承及轴承座等组成,激振器安装在筛箱侧板上,并由电动机通过三角皮带或软连接与其相连,电动机带动偏心轴旋转,产生离心惯性力,迫使筛箱振动。






上一篇:白砂糖专用振动筛优势体现在哪方面 下一篇:石油钻井一级固控设备